
.png&w=3840&q=75)



Projet résidentiel au coeur de Saint-Tropez
2 350 000 €
Réf 86335438
Caractéristiques
Année de construction :
2026
Surface brut :
81
Chambres :
2
Salles de douche :
2
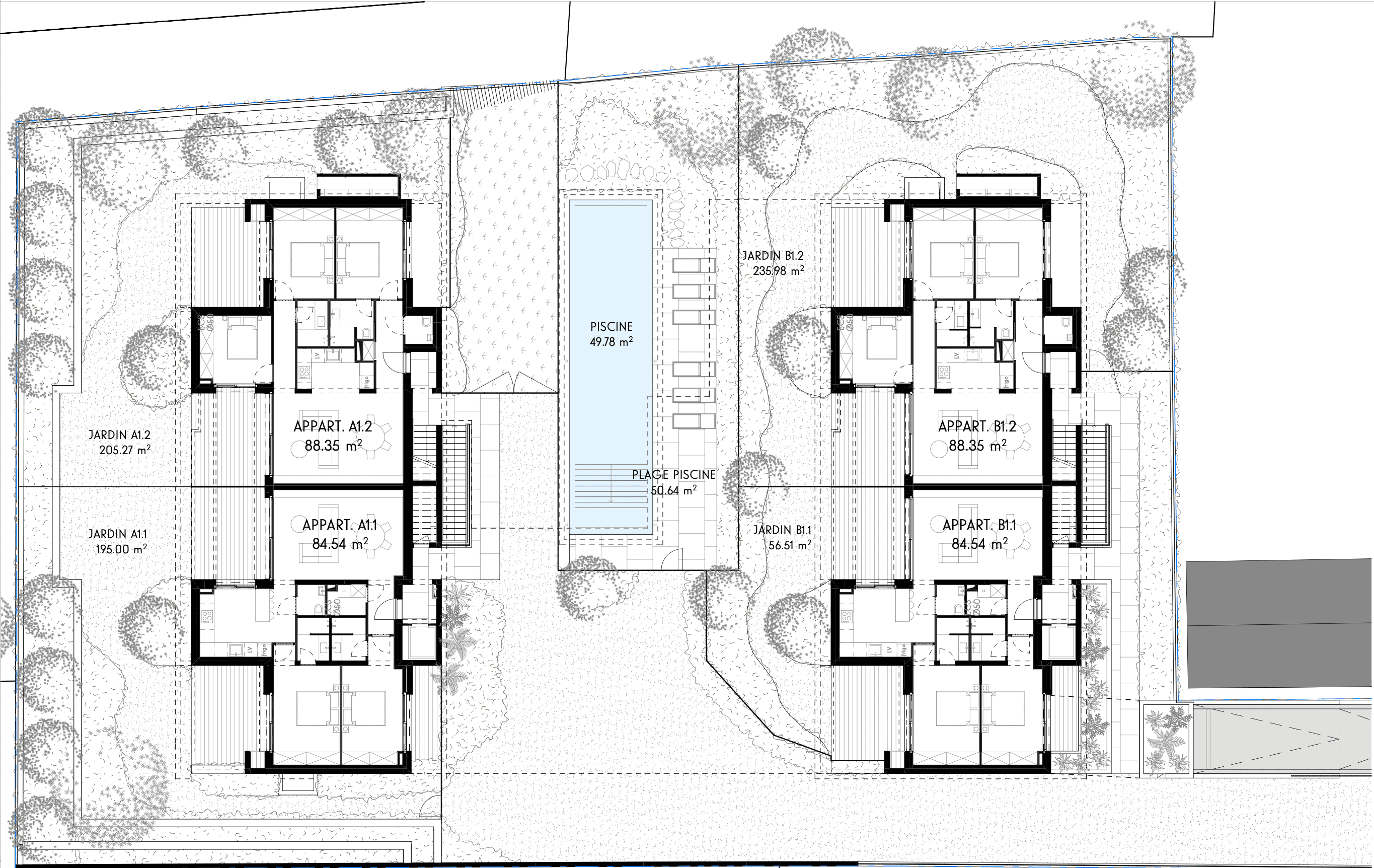
PATIO RUBEN – Appartements de luxe à vendre à SAINT-TROPEZ
Vous recherchez un appartement de luxe à vendre à Saint-Tropez? Découvrez Patio Ruben, un projet résidentiel prestigieux et intimiste au cœur du village. Cette résidence exclusive comprend 6 appartements haut de gamme – 4 appartements avec jardin et 2 vastes appartements au premier étage – conçus avec une attention particulière portée à l’espace, à la lumière et au raffinement méditerranéen.
Les appartements se distinguent par de vastes séjours prolongés par des terrasses ensoleillées, des chambres avec accès direct à des espaces extérieurs privés, une élégante piscine habillée de pierre ainsi qu’un jardin méditerranéen composé de pins parasols, de chênes blancs, d’abricotiers et de figuiers. Chaque appartement est sécurisé, connecté et desservi par un ascenseur, tandis que le garage souterrain offre un confort supplémentaire avec des places de stationnement, une buanderie et des espaces dédiés aux vélos et aux motos.
L’emplacement est idéal : à seulement 400 mètres de la Place des Lices, à 5 km des plages de Pampelonne et à 7 km d’un golf.
Appartement B1.1 – Situé en rez-de-jardin, cet appartement de 81,5 m² propose 2 chambres, 2 salles de douche et 3 terrasses. L’équilibre parfait entre fonctionnalité, charme méditerranéen et luxe exclusif.
Une opportunité rare d’investir dans un bien immobilier prestigieux sur l’un des emplacements les plus recherchés de la Côte d’Azur.
Les informations sur les risques auxquels ce bien est exposé sont disponibles sur le site Géorisques : www.georisques.gouv.fr

Nathan Van Huffel
Responsable d'Agence

Nathan Van Huffel
Les diagnostics énergétiques
Diagnostic de performance énergétique (DPE)
A
B
C
D
E
F
G
Indice d'émission de gaz à effet de serre (GES)
A
B
C
D
E
F
G

